Дизайн квартиры в жилом комплексе «D3», 120 м²

Год: 2020
Локация: ЖК «D3», Минск
Архитектор: Александр Игнатьев



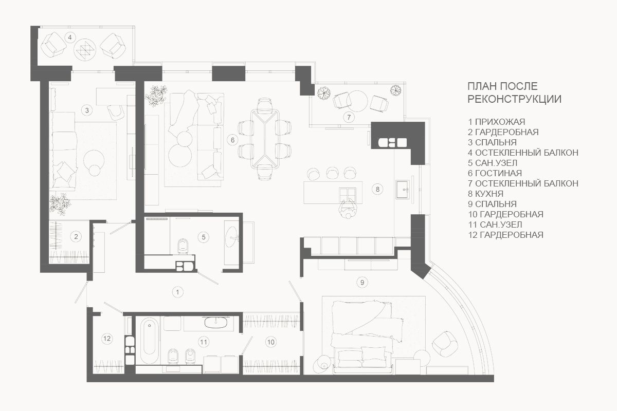
В интерьерах современных квартир, чаще всего, основная площадь и виды отдаются совмещенной зоне гостиной-кухни-столовой, а другие комнаты нарезаются по остаточному принципу... В данном интерьере мы позволили себе отойти от этого стереотипа и равномерно распределили «планировочные плюшки» по всем помещениям.
Гостиная, совмещенная с кухней
Общая зона — умеренная, все элементы интерьера достаточно компактно, но при этом удобно разместились: нашлось место и длинному фронту шкафов колонн на кухне, и барной стойке, и большому столу, и угловому дивану. За счет демонтированных глухих стен между кухней и балконом, и возведением на их месте стеклянного витража — получили больше света и пространства.

Студия дизайна интерьера I-PROJECT стала одним из победителей международного конкурса Global Kitchen Design Award «Международный дизайн кухни», в номинации за лучшую архитектуру и дизайн кухни 2021.
В 2015 году Leicht учредил премию и создал уникальную международную онлайн-платформу в кухонной индустрии, представляющая в этом году более 226 кухонных проектов из 19 стран мира.
Рассчитайте стоимость вашего дизайн проекта и получите коммерческое предложение на вашу почту
Мастер-спальня
Лучший вид из окна, по желанию заказчицы, отдан хозяйской спальне, из которой через просторную и «прозрачную» гардеробную можно попасть в закрепленный за ней санузел. Из спальни и кухни открывается вид на водохранилище «Дрозды».



Кабинет-спальня
Второй комнате (спальне-кабинету взрослой дочери) досталась полноценная гардеробная и балкон. В интерьерной палитре преобладают оттенки пряного меда, дерева, корицы, светлого коралла и ячменного зерна.




Прихожая


Фабрики/Бренды, продукты которых применяются в проекте:


































