Архитектурное проектирование
Разработаем индивидуальный, традиционный или нестандартный проект дома, в соответствии с вашими пожеланиями и персональным техническим заданием.
Как строится работа
Мы работаем полным циклом от проектирования до реализации проекта с его комплектацией и авторским надзором. В зависимости от типа объекта или пожелания клиента мы можем корректировать наш комплекс услуг.
Авторское сопровождение
Выстраиваем схему выполнения проектных предложений и контролируем выполнение работ подрядчиков.
Таким образом исключаем возможность возникновения ошибок или недочетов на смежных участках работ.
Мы не бросаем свою работу на половине пути и сопровождаем проекты до их полной реализации.


Комплектация объекта
Мы берем на себя организацию всех мероприятий, связанных с закупкой и доставкой всех необходимых материалов, образцов, мебели, оборудования.
Согласование поставок материалов с графиком строительных работ.


Видеообзор архитектуры дома
Как мы работаем
Подробнее о процессеСроки и стоимость
Проектирование
Изучение исходных данных, подготовка задания на проектирование и разработка нескольких вариантов планировочных концепций:
30 рабочих дней
Разработка полного комплекта проектной документации и 3D-визуализации:
90 рабочих дней*
*с момента утверждения планировочной концепции и задания на проектирование.
Строительные работы, архитектура
12-18 месяцев
Сопровождаем строительство и комплектуем объект всеми необходимыми материалами и оборудованием.
Строительные работы, интерьер
12-18 месяцев
Черновые работы, чистовые работы, финишные работы.
Комплектация
6-8 месяцев
Организуем процесс по поиску и закупке необходимых материалов и мебели. Работаем только с надежными поставщиками.
Рассчитайте стоимость вашего дизайн проекта и получите коммерческое предложение на вашу почту
Наши работы
Что входит в проект:
Эскизный проект
- 1. Ведомость чертежей
- 2. Архитектурно планировочная концепция: Планы этажей с расстановкой мебели и оборудования. 3D-визуализация фасада здания
- 3. Чертежи фасадов здания в массах с нанесением основных размеров
- 4. Цветовое решение фасада здания
- 5. Планировочная схема участка
Общий объем: 15–20 листов А3
Эскизный проект

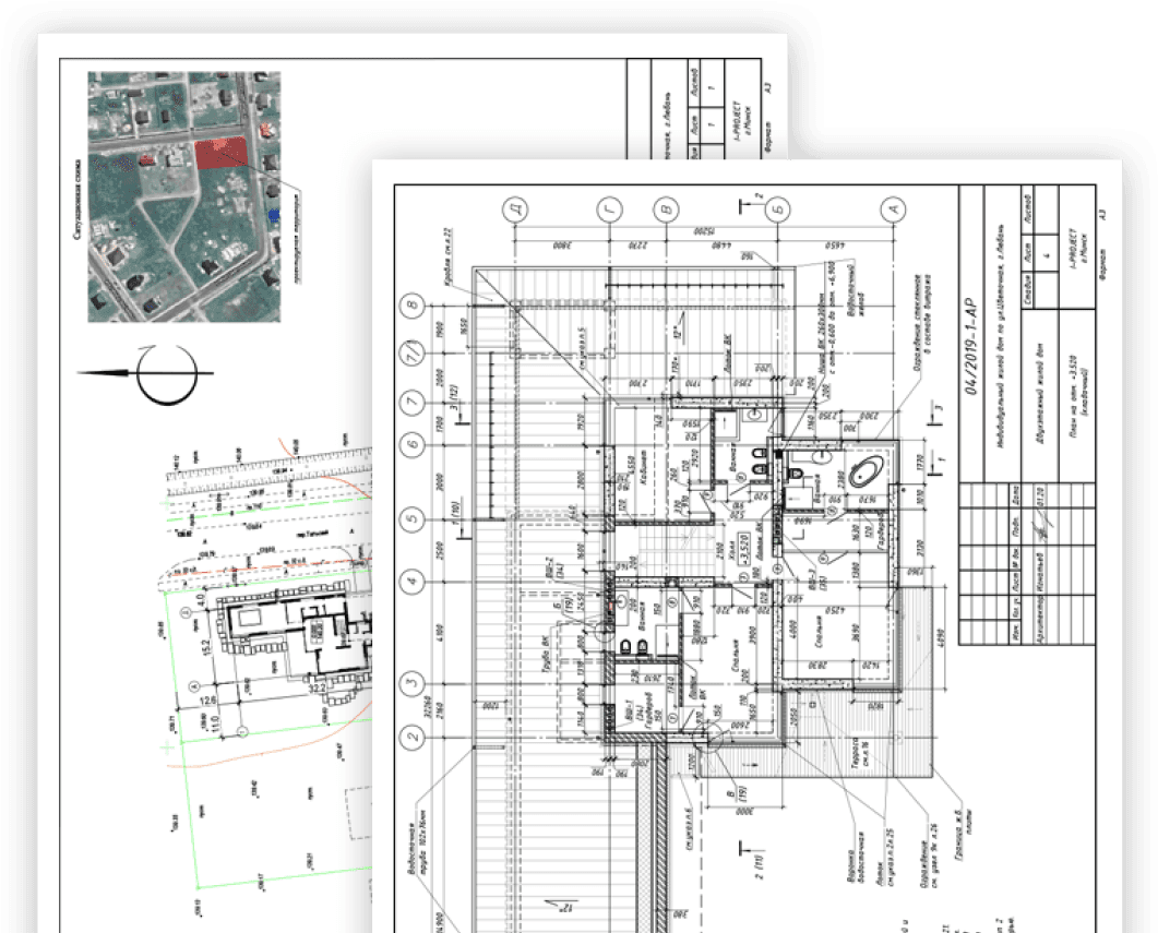
Архитектурные решения
- 1. Общие данные
- 2. Ситуационный план
- 3. План здания
- 4. Укрупненные фрагменты необходимых участков плана здания
- 5. План кровли
- 6. Схема водосточной системы
- 7. Необходимые укрупненные фрагменты и узлы кровли
- 8. Чертежи фасада здания подробные
- 9. Укрупненные фрагменты и узлы необходимых участков фасада здания
- 10. Схема облицовки фасада
- 11. Спецификация заполнения оконных проемов, схемы окон
- 12. Спецификация заполнения дверных проемов, схемы дверей
- 13. Паспорт цветового решения фасада здания
- 14. Ведомость наружной отделки
- 15. Фотореалистичная 3D-визуализации с детализацией материалов, цветов и фактур.
Общий объем: 50–100 листов А3, А2
Архитектурные решения

Смежные разделы
- 1. Конструктивные решения (КР)
- 2. Отопление и вентиляция (ОВ)
- 3. Водопровод и канализация (ВК)
- 4. Электричество и автоматизация (ЭО + «Умный Дом»)
- 5. Инженерная геодезия (топосъемка)
- 6. Инженерная геология (бурение скважин, анализ грунта)
Общий объем: 50-100 листов формата А2, А3, А4
Общий объем: 50-100 листов формата А2, А3, А4

Наш клиент
Реализованный объект
Автор проекта
Дизайн проект,
Архитектурный проект
Сводный проект
Смежные проектировщики
- Конструктивные решения (КР)
- Отопление и вентиляция (ОВ)
- Водопровод и канализация (ВК)
- Электрооборудование и автоматизация (ЭО + «Умный Дом»)
- Инженерная геодезия (топосъемка)
- Инженерная геология (бурение скважин, анализ грунта)
Поставщики товаров и услуг
Салоны и магазины по продаже: электрооборудования, сантехоборудования, строительных материалов, отделочных материалов, мебели, штор, предметов интерьера и т.п.
Производители работ (Мебель)
- Менеджеры
- Проектировщики
- Конструкторы
- Монтажники
- Логисты
Производители работ (Строительство и ремонт)
Прорабы, кладочники, монолитчики, штукатуры, маляры, плиточники,сантехники, электрики, оконщики, жестянщики, кровельщики, благоустраители, геодезисты, геологи и т. п.






